Das angebotene Grundstück befindet sich in der idyllischen Gemeinde Widdern im Landkreis Heilbronn in Baden-Württemberg.
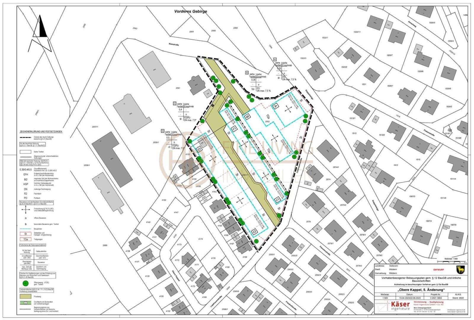
Das insgesamt 5.000 m² große Grundstück bietet viel Platz für individuelle Bebauungsmöglichkeiten und ist somit ideal für die Verwirklichung Ihres Projektes geeignet.
Für dieses Grundstück wurden bereits 5 Doppelhäuser projektiert. Nach diesen Projektierungen hat die Gemeinde Widdern den Bebauungsplan erstellt! Das bedeutet für Sie, als Käufer einen großen Vorteil zu haben.
Die Projektierungen müssen auch nicht übernommen werden. Somit sind Sie nach wie vor mit Ihrer Gestaltung frei gemäß Bebauungsplan.
Für die projektierten Doppelhäuser liegen auch beantragte KfW-Förderungen vor, deren Einreichungsfrist auf 3 Jahre verlängert wurde.
Ein weiterer Vorteil, den Sie hier als Käufer haben!
Die Infrastruktur in Widdern ist sehr gut ausgebaut. Einkaufsmöglichkeiten, Schulen, Kindergärten und Ärzte sind schnell und bequem zu erreichen.
Auch die Anbindung an den öffentlichen Nahverkehr sowie die A81 ist optimal.
Ein großer Arbeitgeber in der Nähe ist das Logistikzentrallager von Kaufland.
Sie sind neugierig geworden? Für weitere Informationen und einen Besichtigungstermin stehen wir Ihnen jederzeit gerne zur Verfügung.
Wir freuen uns auf Ihre Nachricht.
Bitte haben Sie Verständnis dafür, dass wir nur Anfragen mit vollständiger Adressangabe, Email und erreichbarer Handynummer bearbeiten können.






